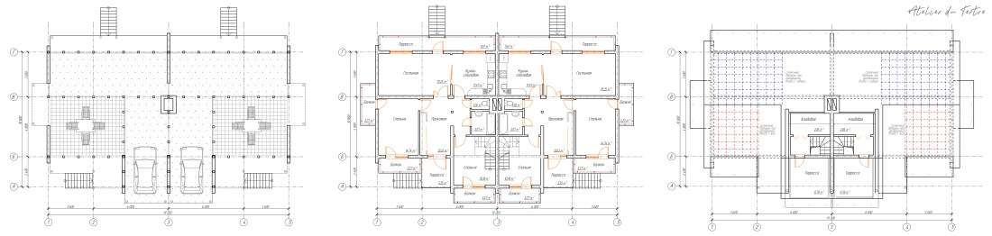
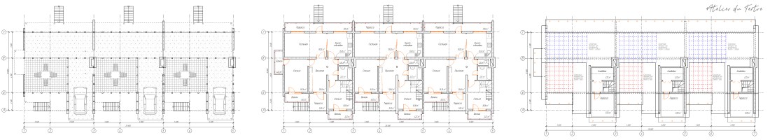
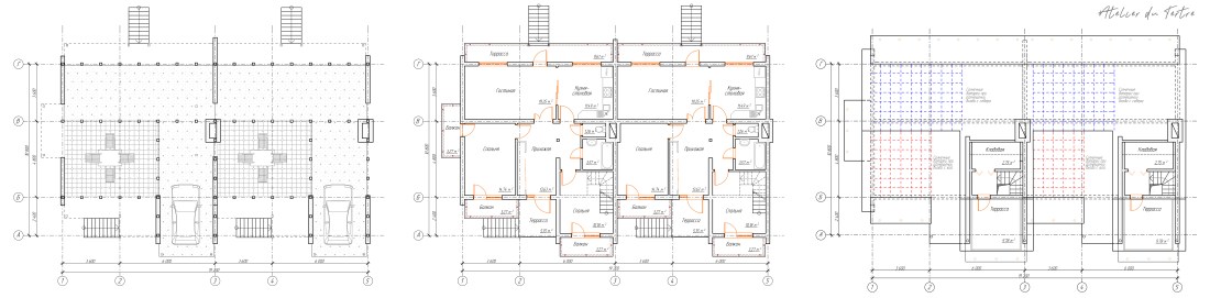
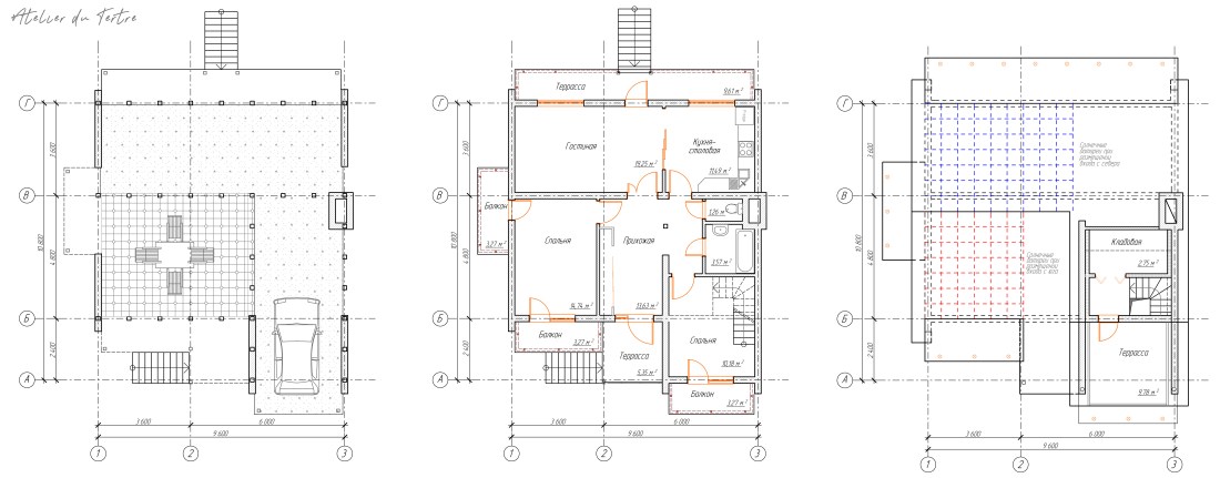
Village de maisons préfabriquées avec élaboration des unités modulables. Éthiopie.