Design d’un bureau esprit appartement. Paris 9e arr. France.

Open space, variante 1

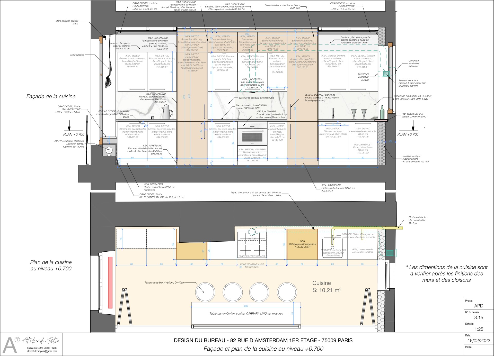
Cuisine

Open space, variante 2

Entrée, Variante 1

Entrée, variante 2

Première salle de réunion, variante 1

Première salle de réunion, variante 2

Deuxième salle de réunion, variante 1

Deuxième salle de réunion, variante 2

Grande salle de bain avec douche

WC à l’entrée

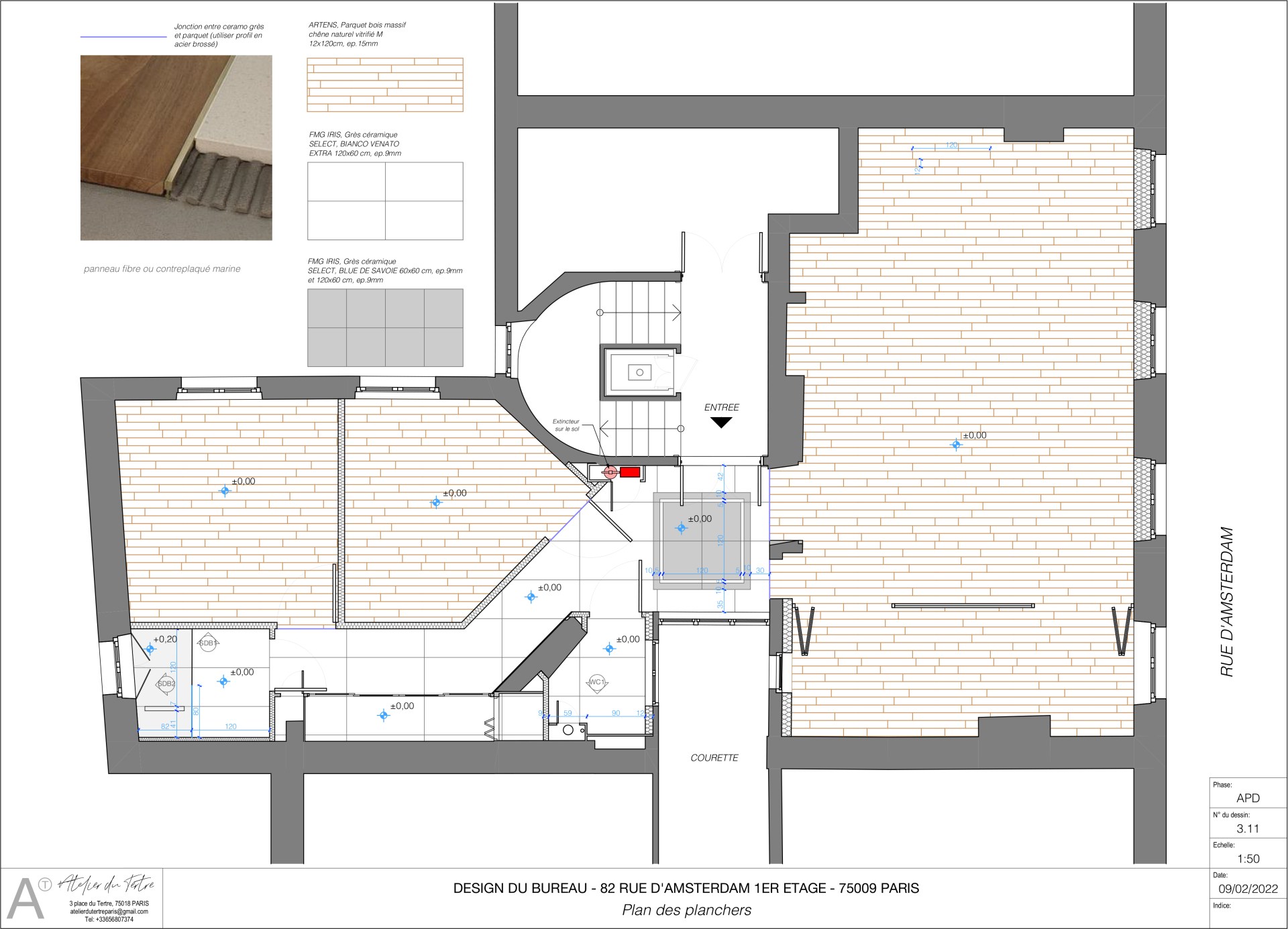
Extrait du dossier d’avant projet d’exécution des travaux